






fotografias de 1 a 13 frederico martinho
fotografias de 14 a 16 alexandra brites
obra koncretiza ao metro, unipessoal lda
casa da piscina ^ miramar, 2024
the double secret of a portico
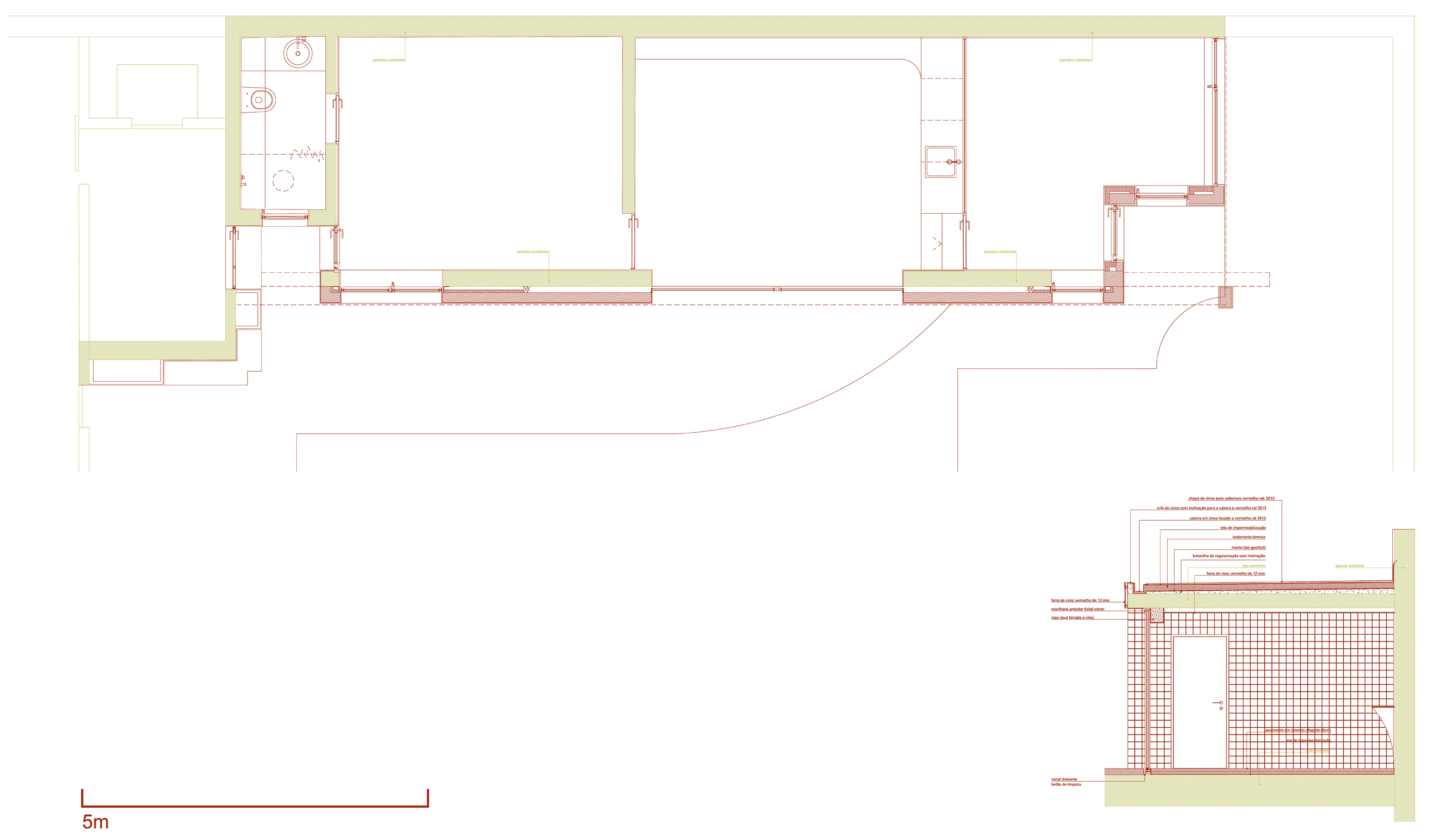
Sobre um volume amarelo emerge um pórtico vermelho. Uma viga apoiada a norte num maciço e a sul num pilar delgado que sustenta a leveza do escoamento das águas.
A casa da piscina revela-se fechada e, contudo, aberta; grande e pequena; simétrica e assimétrica; viga e caleira; maciça e oca; pilar e estaca; bruta e delicada.